Leave a Message

Thank you for your message. We will be in touch with you shortly.

Explore Our Properties

Property Description

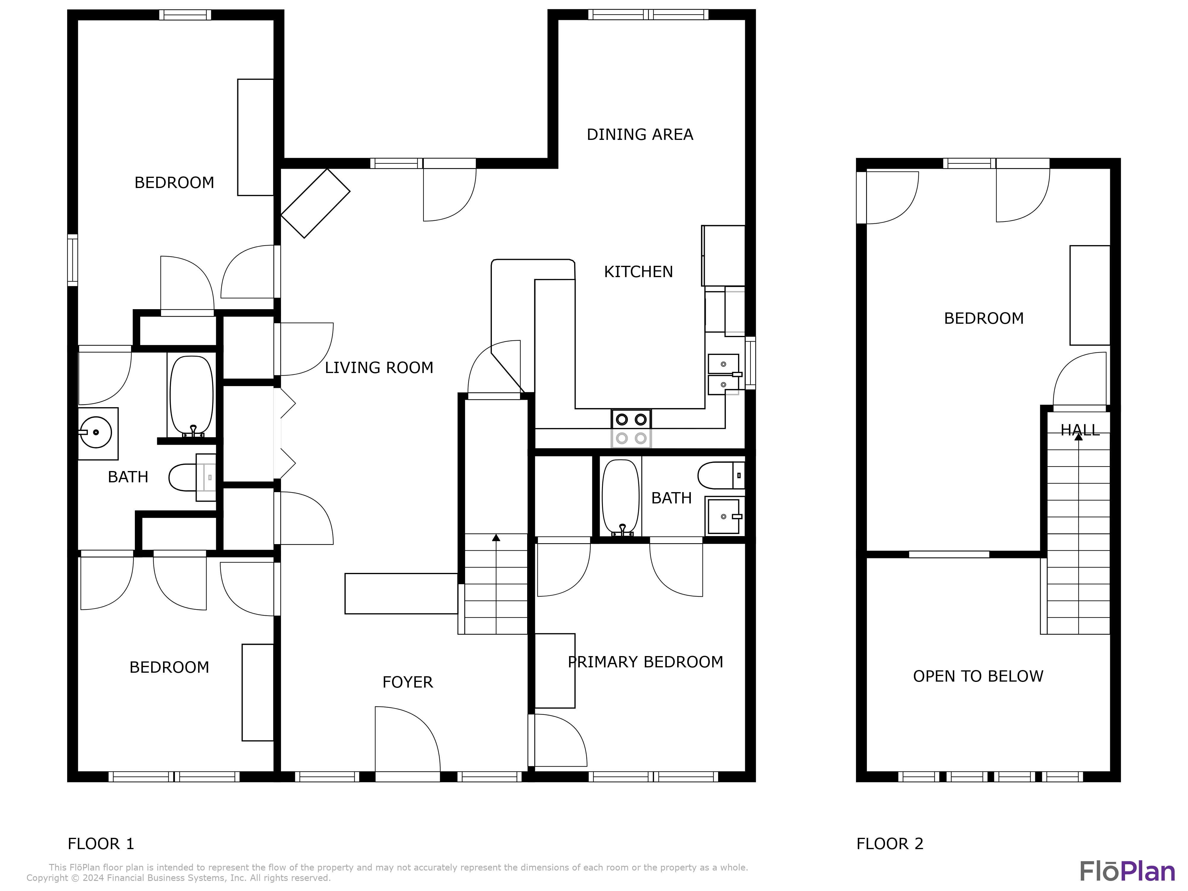
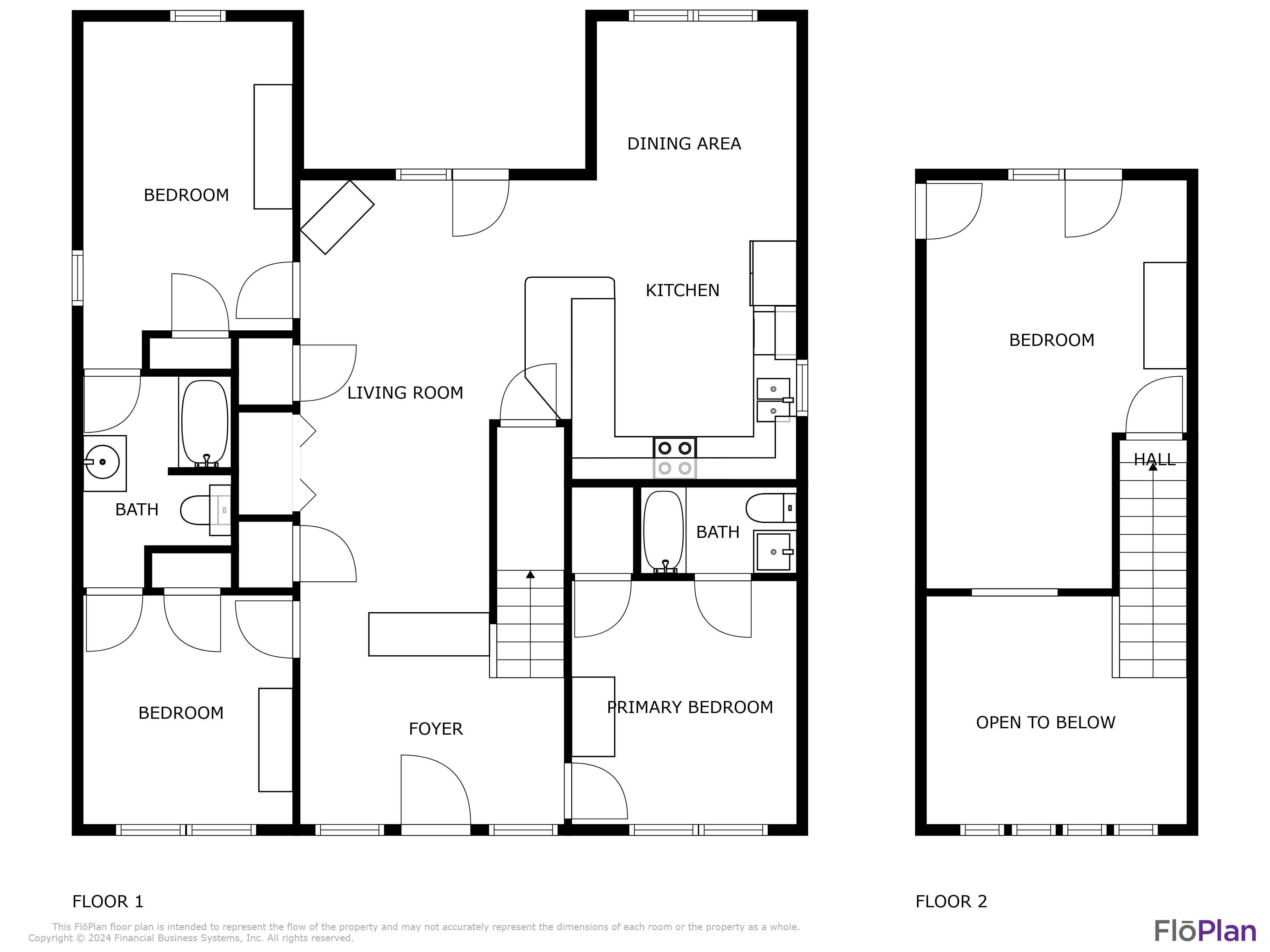
Just minutes away from the town center of Ocean Isle Beach, lies a gem, a charming beach bungalow...148 E 2nd St stands as a testament to coastal living, offering a getaway beach home that spans over 1,600 square feet, 4 bedrooms, 2 baths, an in-ground pool and is now inviting new owners to experience its charm. Upon entering, one is greeted by an open foyer that flows into the living area and kitchen and dining to the rear of the home. A single bedroom on the right with an ensuite bath and to the left two additional beds with an adjoining jack/jill bathroom. Upstairs is a spacious loft with a private balcony offering astounding ocean views. The living space flows seamlessly outdoors to a spacious deck with an extra dining area for outdoor entertaining and overlooks the captivating pool--perfect for tranquil afternoons or exuberant weekend gatherings. The pool is complemented by a lounge area, picnic table, grilling area and an outdoor shower, adding a touch of practical elegance that is most appreciated after a day at the beach. The allure of this home is substantially enhanced by the breathtaking ocean views it offers--an ever-present panorama that promises endless serenity. Just 600 feet to the ramped beach access of Raeford St, the beach is only a short stroll away. For those interested in investment opportunities, this property also shines as a high-potential rental, thanks to its enviable location and outstanding amenities. Whether one desires a private family sanctuary or a lucrative venture, 148 E 2nd St holds the potential to fulfill a variety of dreams. One of the best bonus features is the home is located along the parade routes hosted by the OIB POA for July 4th and Christmas. Embrace the chance to create a beautiful future in a place that feels like a perpetual vacation.

Overview

Property Status
Sold
Lot Size
5,097 Sq.Ft.
MLS ID
100457694
Property Type
Residential
Year Built
1984

Features & Amenities

Total Area
1,608 Sq.Ft.
Neighborhood
Waterway Cove
View Description
Ocean, Water
Stories
2
Garage Spaces
2.0
Water Source
Public
Utilites
Sewer Available, Water Available
Pool
In Ground
Roof
Shingle
Parking
Garage Faces Front, Attached, Gravel, On Site, Paved, Tandem
Heat Type
Heat Pump, Electric
Air Conditioning
Ceiling Fan(s), Central Air
Appliances
Electric Oven, Washer, Refrigerator, Dryer, Dishwasher
Other Interior Features
Entrance Foyer, Vaulted Ceiling(s), Kitchen Island, Ceiling Fan(s)
Sewer
Public Sewer
Substructure
Other
Security Features
Smoke Detector(s)
Elementary School
Union
Middle School
Shallotte Middle
High School
West Brunswick
School District
Brunswick County Schools
Sales Price
$798,000
Real Estate Tax
$2,209/yr
Zoning
OI-R1

Downloads

148 E Second Street

Schedule a Tour

We would love to help you see this beautiful home! As a full-service brokerage, we can help you tour. Please submit an offer, and answer questions about the buying process.

Thank you

for your interest in 148 E Second Street, Ocean Isle Beach, NC 28469

148 E Second Street
Navigate
Waterway Cove

Explore Waterway Cove

Waterway Cove — coastal living close to the beach, with charming homes and vibrant community life.

read more

I'm Interested In

148 E Second Street

or

Browse our Active Listings

Featured Properties

  • 483.10 Whiteville Road NW For Sale

    $5,500,000

    483.10 Whiteville Road Ac NW, Shallotte, NC 28470

  • 503 S Canal & Maultsby Street For Sale

    $3,500,000

    503 S Canal & Maultsby Street + 211 + 503, Whiteville, NC 28472

  • 57 Craven Street For Sale

    $2,995,000

    57 Craven Street, Ocean Isle Beach, NC 28469

    • 5 Beds
    • 6 Baths
    • 3,440 Sq.Ft.
  • 313 E Second Street For Sale

    $2,495,000

    313 E Second Street, Ocean Isle Beach, NC 28469

    • 6 Beds
    • 7 Baths
    • 3,108 Sq.Ft.
  • 148 Via Old Sound Boulevard For Sale

    $2,140,000

    148 Via Old Sound Boulevard, Ocean Isle Beach, NC 28469

    • 5 Beds
    • 6 Baths
    • 3,473 Sq.Ft.
  • 503 S Canal Street For Sale

    $2,130,000

    503 S Canal Street, Whiteville, NC 28472

  • 23 Grande View Drive For Sale

    $2,100,000

    23 Grande View Drive, Ocean Isle Beach, NC 28469

    • 5 Beds
    • 5 Baths
    • 2,569 Sq.Ft.
  • 1313 N Howe Street For Sale

    $1,500,000

    1313 N Howe Street, Southport, NC 28461

  • 2340 Boones Neck Road SW For Sale

    $1,500,000

    2340 Boones Neck Road SW, Supply, NC 28462

  • 4700 Shallotte Avenue For Sale

    $1,500,000

    4700 Shallotte Avenue, Shallotte, NC 28470

  • 196 W Fourth Street For Sale

    $1,115,000

    196 W Fourth Street, Ocean Isle Beach, NC 28469

  • 211 S Canal Street For Sale

    $1,080,000

    211 S Canal Street, Whiteville, NC 28472

    • 68,160 Sq.Ft.
  • 2016 Camelot Drive SW Pending

    $875,000

    2016 Camelot Drive & 2010 SW, Ocean Isle Beach, NC 28469

  • 1567 Colonist Square SW For Sale

    $849,900

    1567 Colonist Square SW, Ocean Isle Beach, NC 28469

    • 6 Beds
    • 3 Baths
    • 3,949 Sq.Ft.
  • 1878 8 Goose Creek Road SW For Sale

    $792,500

    1878 Goose Creek Road SW, Ocean Isle Beach, NC 28469

  • 5 Jan Street SW Unit D For Sale

    $785,000

    5 Jan Street SW Unit D, Ocean Isle Beach, NC 28469

    • 4 Beds
    • 4 Baths
    • 1,691 Sq.Ft.
  • 185 Via Old Sound Boulevard B For Sale

    $695,000

    185 Via Old Sound Boulevard B, Ocean Isle Beach, NC 28469

    • 4 Beds
    • 4 Baths
    • 1,691 Sq.Ft.
  • 355 S Middleton Drive NW For Sale

    $595,000

    355 S Middleton Drive NW, Calabash, NC 28467

    • 3 Beds
    • 3 Baths
    • 2,633 Sq.Ft.
  • 1441 Cassidy Court For Sale

    $545,900

    1441 Cassidy Court, Ocean Isle Beach, NC 28469

    • 3 Beds
    • 2 Baths
    • 1,787 Sq.Ft.
  • 81 Eagle Claw Drive For Sale

    $530,000

    81 Eagle Claw Drive, Calabash, NC 28467

    • 4 Beds
    • 3 Baths
    • 3,165 Sq.Ft.
  • 1649 Butterfly Knot Drive SW Pending

    $529,900

    1649 Butterfly Knot Drive SW, Ocean Isle Beach, NC 28469

    • 3 Beds
    • 2 Baths
    • 1,620 Sq.Ft.
  • 30 Beaufort Street, Apt F Apt F Pending

    $477,777

    30 Beaufort Street Apt F, Ocean Isle Beach, NC 28469

    • 2 Beds
    • 2 Baths
    • 1,132 Sq.Ft.
  • 8985 Woodbine Road SW For Sale

    $473,850

    8985 Woodbine Road SW, Sunset Beach, NC 28468

    • 4 Beds
    • 3 Baths
    • 2,263 Sq.Ft.
  • 1812 Sandalwood Drive SW For Sale

    $459,000

    1812 Sandalwood Drive SW, Ocean Isle Beach, NC 28469

    • 3 Beds
    • 2 Baths
    • 1,400 Sq.Ft.
  • 532 Medcalf Drive SW For Sale

    $435,000

    532 Medcalf Drive SW, Sunset Beach, NC 28468

    • 3 Beds
    • 4 Baths
    • 2,600 Sq.Ft.
  • 1986 Big Neck Road NW For Sale

    $395,000

    1986 Big Neck Road NW, Ash, NC 28420

  • 5886 Lycia Lane SW, Ocean Isle Beach For Sale

    $367,500

    5886 Lycia Lane SW, Ocean Isle Beach, NC 28469

    • 3 Beds
    • 2 Baths
    • 1,691 Sq.Ft.
  • 9355 Eagle Ridge Drive Pending

    $359,900

    9355 Eagle Ridge Drive, Calabash, NC 28467

    • 3 Beds
    • 2 Baths
    • 1,871 Sq.Ft.
  • 9470 Barnstormer Drive For Sale

    $350,900

    9470 Barnstormer Drive, Calabash, NC 28467

    • 3 Beds
    • 2 Baths
    • 1,877 Sq.Ft.
  • 1618 Woodland Court SW Pending

    $325,000

    1618 Woodland Court SW, Ocean Isle Beach, NC 28469

    • 2 Beds
    • 3 Baths
    • 1,701 Sq.Ft.
  • 1215 N Middleton Drive NW, 2204 For Sale

    $240,000

    1215 N Middleton Drive NW 2204, Calabash, NC 28467

    • 2 Beds
    • 2 Baths
    • 1,178 Sq.Ft.
  • 165 Royal Poste Road, # 2911 # 2911 For Sale

    $239,000

    165 Royal Poste Road # 2911, Sunset Beach, NC 28468

    • 2 Beds
    • 2 Baths
    • 861 Sq.Ft.
  • 503 Cromwell Notch SW For Sale

    $147,500

    503 Cromwell Notch SW, Ocean Isle Beach, NC 28469

  • Lot 1 Stone Ballast Way For Sale

    $114,900

    Lot 1 Stone Ballast Way, Ocean Isle Beach, NC 28469

  • Lot 5 Stone Ballast Way For Sale

    $110,900

    Lot 5 Stone Ballast Way, Ocean Isle Beach, NC 28469

  • Lot 3 Stone Ballast Way For Sale

    $109,900

    Lot 3 Stone Ballast Way, Ocean Isle Beach, NC 28469

  • Lot 6 Stone Ballast Way For Sale

    $108,900

    Lot 6 Stone Ballast Way, Ocean Isle Beach, NC 28469

  • Lot 2 Stone Ballast Way For Sale

    $107,900

    Lot 2 Stone Ballast Way, Ocean Isle Beach, NC 28469

  • Lot 4 Stone Ballast Way For Sale

    $106,900

    Lot 4 Stone Ballast Way, Ocean Isle Beach, NC 28469

  • 1930 Stone Ballast Way SW For Sale

    $99,900

    1930 Stone Ballast Way SW, Ocean Isle Beach, NC 28469

View All

Follow Us On Instagram